
家族のかたちにつくる家
urac and(ウラクアンド)は住む人がつくる家です。
安全を保つ最小限の構造壁と柱以外は、自由に間取りを変えられる「ドミノシステムの木造住宅」。建てた後からも家具やパネルで、自由なかたちに模様替えできます。「家族がふえた」「新しい趣味を見つけた」「ペットを飼おう」and それから、and それから…
「&」のある暮らしを家族でつくっていきませんか?

urac andとは

構造

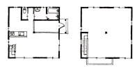
「スケルトン(構造体)」と「インフィル(内装・設備)」を分離した工法(ドミノシステム)を採用しています。
基本スペース

外壁で構造の安全性と断熱性能をシンプルな中にもしっかり確保します。
安心の建物性能 耐震等級3・断熱等性能等級4
カスタマイズ!

基本スペースに、家族のくらし方にあわせて仕切りと設備を追加、自分たちのための家をつくりあげます!
